
Meinrad Hofer ist Fotograf – frönt also schon von Berufs wegen dem Schönen und Idyllischen. Gemeinsam mit KENH hat er von 2023 bis 2025 eine Hütte am Semmering errichtet, die nunmehr auch für Kurzzeitmieten offensteht: Caspar’s Home, benannt nach dem Maler Caspar David Friedrich.
Der Neubau nimmt die Ästhetik des gegenüberliegenden und ebenfalls von KENH realisierten Atelierhauses auf und bildet so ein Ensemble, das sich organisch in die malerische Landschaft einfügt.

Neubau
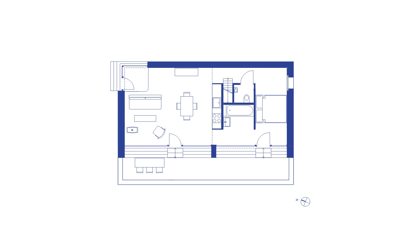
Größe: 49 Quadratmeter
Fertigstellung: 2025
Meinrad Hofer
Eric-Emanuel Tschaikner, Meinrad Hofer
Eric-Emanuel Tschaikner, Kim Tien
Klamm am Semmering
Im Sinne einer minimalen Bodenversiegelung und mit Rücksicht auf die umliegende Natur ruht Caspar’s Home auf einem rudimentären Betontisch, der konstruktiv auf drei Scheiben vor dem steilen Hang liegt. Das Fundament richtet sich in Richtung des pittoresken Tals aus und bildet gleichzeitig die Basis für das eigentliche Holzhaus. So entsteht ein Drunter und Drüber – ausdifferenzierte Räume, ohne zu sehr in die Topografie des Geländes einzugreifen. Die minimalistische Lodge für bis zu vier Personen wurde als Holzkonstruktion unter der Prämisse eines sparsamen Einsatzes von authentischen Materialien errichtet.
Durch die Ausrichtung des Gebäudes und die bewusst nach unten versetzte, vorgelagerte Terrasse erlaubt Caspar’s Home einen ungehinderten Blick in die Ferne und ins Tal. Durch den Höhenunterschied von innen nach außen ergeben sich entlang der großzügigen Fensterfront außerdem Sitzbänke und Liegeflächen mit sagenhafter Aussicht. Hier lassen sich die Ruhe und die pittoreske Landschaft vollends genießen!
Caspar’s Home ist ein mit einfachen Mitteln realisiertes Gebäude, das die Tradition und Schönheit des Semmerings in schlichter Form vielfältig inszeniert.


KENH Architekten ZT GmbH
Zirkusgasse 34/2, 1020 Wien